根据医院采购内控管理制度,现发布我院南院区120急救分站建设项目采购意向及市场调研公告,欢迎符合条件的供应商前来参加,有意向者须提交符合下列要求的调研材料(纸质版材料加盖公章一份),并保证所提供的各种材料真实、有效、齐全,承担相应的法律责任。
一、项目名称
樱桃视频
南院区120急救分站建设项目。
二、项目简介
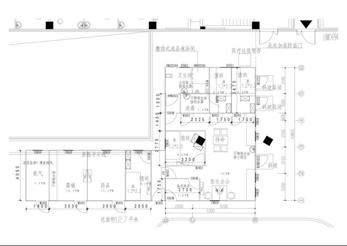
建设内容及规模:总建筑面积127平方米,其中新建面积约40平方米,改造面积约87平方米。新建用房功能包括器械、药品、氧气瓶库;改造用房功能包括待命区、办公室、就餐区、消毒室、值班室、卫生淋浴间、医疗垃圾和生活垃圾暂存区等。配套给排水、空调、强弱电安装等。新建和改造用房均为防火岩棉夹芯彩钢板临时过渡用房。
三、方案平面图
见附件1 。
四、调研所需材料:
1.具有独立承担民事责任能力的报价人营业执照或相关部门的登记证明文件复印件;
2.关于资格的声明函(格式见附件2);
3.调研单位法定代表人授权委托书(法定代表人亲自参与报价的除外,格式见附件3);
4.调研单位法定代表人身份证复印件及法定代表人授权代表身份证复印件(报价时必须携带法定代表人或法定代表人授权代表有效身份证明原件,格式见附件3);
5.调研单位资质证明材料:公司具有房屋建筑工程施工总承包三级(含)以上资质和有效的安全生产许可证(扫描件);
6.采购调研表(格式见附件4)
五、调研相关事宜
1.接收调研资料时间:截止2024年7月 8 日下午五点前(北京时间,法定节假日除外 )
2.调研地点:樱桃视频
南院区基建办
3.联系人:王老师,联系电话: 18261531537
附件1:
附件2:
关于资格的声明函
樱桃视频
:
我公司(单位)参加本次 樱桃视频
南院区120急救分站建设项目 市场调研前三年内,在经营活动中没有重大违法记录,我公司(单位)愿参加本次市场调研,所提交的所有文件、证明、陈述均是真实的、准确的。若有违背,我公司(单位)愿意承担由此而产生的一切后果。
单位名称(盖章):
法定代表人或法定代表人授权代表(签字或盖章):
日期 :
附件3:
法定代表人授权委托书
樱桃视频
:
系中华人民共和国合法公司(单位),特授权 代表我公司(单位)参加 樱桃视频
南院区120急救分站建设项目 的市场调研活动,并签署全部有关文件。
我公司(单位)对被授权代表的签名负全部责任。
在撤销授权的书面通知送达你处以前,本授权书一直有效,被授权代表签署的所有文件(在授权书有效期内签署的)不因授权的撤销而失效。
被授权代表情况:
姓名: 性别: 电话:
身份证号码:
单位名称(盖章):
法定代表人(签字或盖章):
附:
